五反田佑気ビル

募集概要

お気に入り
敷金 賃料(円/坪) 共益金(円/坪) OAフロア 空調 契約区分
応相談 応相談 個別 普通
備考:グロス契約 共益金込 

※消費税は別途となります。
※更新料:なし 償却費:なし

物件概要

  • 竣工年月
  • 1991/07
  • 改修年月日
  • エリア
  • 目黒・白金・五反田

  • 住所
  • 東京都品川区西五反田8-2-8
  • 最寄り駅
  • 五反田駅(JR山手線)徒歩6分
    五反田駅(都営浅草線)徒歩6分
    大崎広小路駅(東急池上線)徒歩3分
  • 物件取扱
  • 共同施設PM取扱物件
  • 物件担当
  • 西川

建設概要

  • 構造種別詳細
  • 鉄筋コンクリート造
  • 建築規模(地上)
  • 10階
  • 建築規模(地下)
  • 1階

設備概要

コンセント容量

  • B3F
  • B2F
  • B1F
  • 1F
  • 2F
  • 3F
  • 4F
  • 5F
  • 6F
  • 7F
  • 8F
  • 9F
  • 10F
  • 11F
  • 12F
  • 13F
  • 14F
  • 15F
  • 16F
  • 17F
  • 18F
  • 19F
  • 20F
  • 備考

電話回線

  • MDF回線
  • IDF回線
  • 備考

テレビ共聴

  • VHF
  • UHF
  • BS
  • CS
  • 地デジ
  • 備考

光ケーブル

  • 光設備導入
  • NTT有無
  • その他光設備
  • 備考
  • 要打合わせ

床仕様

  • Pタイル
  • タイルカーペット
  • フリーアクセス
  • 備考

床荷重

  • 床荷重(Kg)
  • 備考

トイレ

  • 階数
  • 小便器
  • 大便器
  • 洗面器
  • 備考

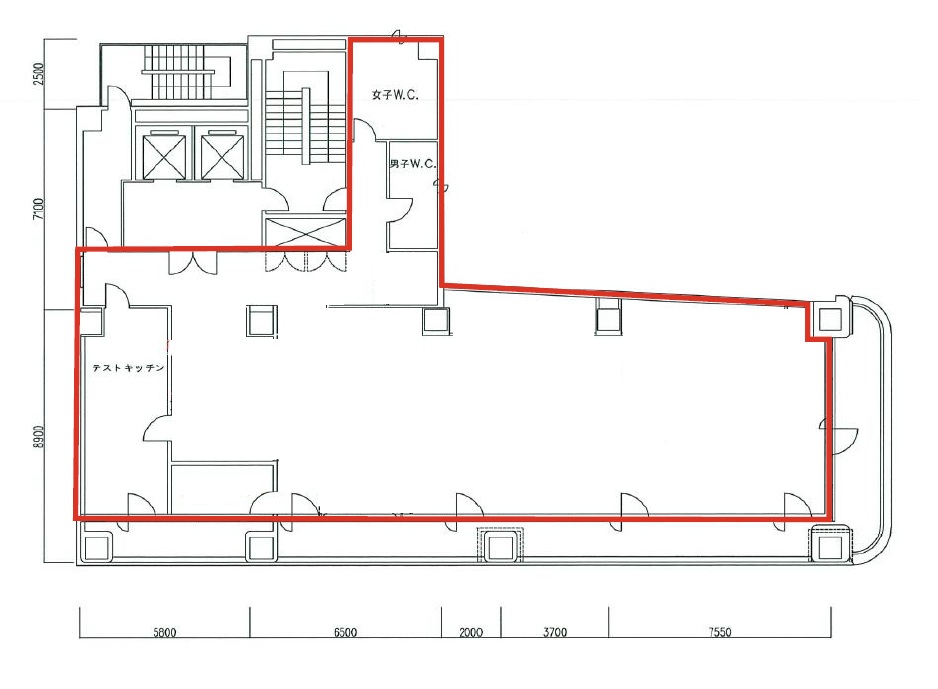
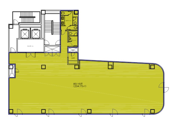
天井高さ/仕様

  • 階数
  • 高さ
  • 天井高備考
  • 2,420
  • (一部2,230)
  • 天井仕様
  • 備考

エレベーター

  • 台数
  • 2基

駐車場

  • 収容台数
  • 全長
  • 全幅
  • 全高
  • 全重量
  • 管理方式
  • 利用時間備考

セキュリティ

  • 警備方式
  • 機械整備
  • 入館時間
  • セキュリティーカードにて24時間入館可能

写真

内覧会情報

近日中の内覧会情報はありません。

各種お問い合わせ
  • Webからのお問い合わせ

  • 電話でのお問い合わせ

    0120-987-635